Сдам помещение свободного назначения, 29 м²

ул Максима Горького, д. 155

80 000 руб.

?

$ 1 086

€ 979

2 759 руб./м²


29 м²

1/5 этажей

Код объекта

127800

Предложение доступно для субагентов, авторизуйтесь

Сдам Помещение свободного назначения, 29 м²

Код объекта: 127800.
Тип объекта: Помещение свободного назначения.
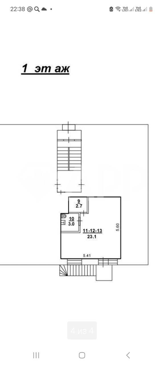
Площадь: 29 м².
Этаж / Этажность: 1 / 5.

Описание и характеристики

Характеристики:
- 1 линия
- Отдельная входная группа
- Общая парковка
- Есть возможность разместить вывеску
- Погрузка/разгрузка: Главный вход
- Доступ 24/7
- ХВС/Бойлер
- Свой санузел
- Центральное отопление
- Естественная вентиляция
- Есть кондиционер
- Максимальная мощность 7 кВт
- Хороший ремонт
- Стрит ритейл
- Без лифта
- Высота потолков 3 м
- С окнами
- Возможность перепланировки
- Коммунальные услуги оплачиваются отдельно

Дополнительная информация:
Фасадное помещение , проходимая улица большого потока людей , внутри свежий ремонт , с возможностью перепланировки из 2 комнат в один большой зал . Возможность подключения видеонаблюдение и охраны .

Помощь с оформлением ипотеки

Подписывайтесь на наш профиль, чтобы узнавать о новых локациях первыми!

Перейти в карточку объекта в CRM: 127800.

Дмитрий

+7 928 166-01-23

или оставьте ваш номер, и я перезвоню в течение 30 минут

Отправляя заявку вы соглашаетесь на обработку персональных данных

80 000 руб.

?

$ 989

€ 857

2 759 руб./м²


29 м²

1/5 этажей

Код объекта

127800

Предложение доступно для субагентов, авторизуйтесь

Дмитрий

+7 928 166-01-23

или оставьте ваш номер, и я перезвоню в течение 30 минут

Отправляя заявку вы соглашаетесь на обработку персональных данных

Похожие объявления

Посмотреть все похожие объявления
1/10
Код объекта: 255350.
Тип объекта: Помещение свободного назначения.
Площадь: 111 м².
Этаж / Этажность: 1 / 5.
1/25
Код объекта: 268237.
Тип объекта: Помещение свободного назначения.
Площадь: 63 м².
Этаж / Этажность: 1 / 3.
1/17
Код объекта: 268270.
Тип объекта: Помещение свободного назначения.
Площадь: 112.5 м².
Этаж / Этажность: 1 / 9.
1/14
Код объекта: 277909.
Тип объекта: Помещение свободного назначения.
Площадь: 125 м².
Этаж / Этажность: 1 / 20.
1/20
Код объекта: 276392.
Тип объекта: Помещение свободного назначения.
Площадь: 250 м².
Этаж / Этажность: -1 / 2.
1/26
Код объекта: 276363.
Тип объекта: Помещение свободного назначения.
Площадь: 30 м².
Этаж / Этажность: 1 / 3.
1/3
Код объекта: 343723.
Тип объекта: Помещение свободного назначения.
Площадь: 20 м².
Этаж / Этажность: 1 / 1.
1/19
Код объекта: 350757.
Тип объекта: Помещение свободного назначения.
Площадь: 30 м².
Этаж / Этажность: 1 / 1.
1/19
Код объекта: 355351.
Тип объекта: Помещение свободного назначения.
Площадь: 25 м².
Этаж / Этажность: 1 / 3.
1/18
Код объекта: 370809.
Тип объекта: Помещение свободного назначения.
Площадь: 29 м².
Этаж / Этажность: 1 / 5.
1/9
Код объекта: 255735.
Тип объекта: Офисное помещение.
Площадь: 106 м².
Этаж / Этажность: 4 / 5.
1/18
Код объекта: 255872.
Тип объекта: Офисное помещение.
Площадь: 60 м².
Этаж / Этажность: 7 / 9.
1/10
Код объекта: 255350.
Тип объекта: Помещение свободного назначения.
Площадь: 111 м².
Этаж / Этажность: 1 / 5.
1/13
Код объекта: 254566.
Тип объекта: Помещение свободного назначения.
Площадь: 1090 м².
Этаж / Этажность: 1 / 22.
1/37
Код объекта: 252582.
Тип объекта: Отдельно стоящее здание.
Площадь: 370 м².
Этаж / Этажность: 1 / 3.

Не хочу искать, перезвоните мне!

Оставьте номер телефона, наш специалист свяжется с вами и поможет с подбором недвижимости!