Эксклюзив/летняя площадка/6м потолки/вайтбокс/элитные дома

ул Вересаева, д. 102

99 999 руб.

?

$ 1 086

€ 979

1 000 руб./м²


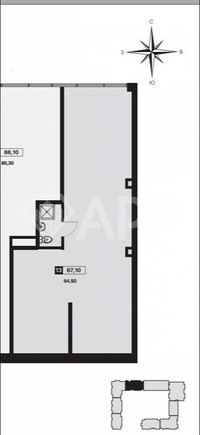
100 м²

1/13 этажей

Код объекта

118030

Предложение доступно для субагентов, авторизуйтесь

Эксклюзив/летняя площадка/6м потолки/вайтбокс/элитные дома

Код объекта: 118030.
Тип объекта: Помещение свободного назначения.
Площадь: 100 м².
Этаж / Этажность: 1 / 13.

Описание и характеристики

От собственника! Без комиссии!

Характеристики:
- 1 линия
- Отдельная входная группа
- Общая парковка
- Есть возможность разместить вывеску
- Погрузка/разгрузка: Главный вход, Запасной вход
- Доступ 24/7
- ХВС/ГВС
- Свой санузел
- Центральное отопление
- Естественная вентиляция
- Максимальная мощность 20 кВт
- Предчистовой ремонт
- Отдельно стоящее здание
- Имеется запасной выход
- Высота потолков 6 м
- С окнами
- Возможность перепланировки
- Коммунальные услуги оплачиваются отдельно

Дополнительная информация:
Возможно согласования летней площадки/реклымы/входа с внутренней части двора. С учетом того , что высота потолков 6 метров и у помещение по факту 67 м по полу предусмотрена антресоль (делает арендатор и получает на это арендные каникулы до 3 месяцев) получится больше 100м2 итого по 1000₽ за м2 в элитном жк с огромными перспективами. Напомню помещение фасадом выходим на прогулочную зону между домами , где ожидается очень большой трафик жителей жк

По всем вопросам можете обращаться к представителю собственника: Луцкий Артем
Помощь с оформлением ипотеки

Подписывайтесь на наш профиль, чтобы узнавать о новых локациях первыми!

Перейти в карточку объекта в CRM: 118030.

Дмитрий

+7 989 541-43-07

или оставьте ваш номер, и я перезвоню в течение 30 минут

Отправляя заявку вы соглашаетесь на обработку персональных данных

99 999 руб.

?

$ 1 355

€ 1 144

1 000 руб./м²


100 м²

1/13 этажей

Код объекта

118030

Предложение доступно для субагентов, авторизуйтесь

Дмитрий

+7 989 541-43-07

или оставьте ваш номер, и я перезвоню в течение 30 минут

Отправляя заявку вы соглашаетесь на обработку персональных данных

Похожие объявления

Посмотреть все похожие объявления
1/10
Код объекта: 255350.
Тип объекта: Помещение свободного назначения.
Площадь: 111 м².
Этаж / Этажность: 1 / 5.
1/25
Код объекта: 268237.
Тип объекта: Помещение свободного назначения.
Площадь: 63 м².
Этаж / Этажность: 1 / 3.
1/17
Код объекта: 268270.
Тип объекта: Помещение свободного назначения.
Площадь: 112.5 м².
Этаж / Этажность: 1 / 9.
1/29
Код объекта: 268305.
Тип объекта: Помещение свободного назначения.
Площадь: 70 м².
Этаж / Этажность: 1 / 2.
1/11
Код объекта: 272071.
Тип объекта: Помещение свободного назначения.
Площадь: 70 м².
Этаж / Этажность: 1 / 2.
1/10
Код объекта: 255350.
Тип объекта: Помещение свободного назначения.
Площадь: 111 м².
Этаж / Этажность: 1 / 5.
1/26
Код объекта: 263017.
Тип объекта: Помещение свободного назначения.
Площадь: 120 м².
Этаж / Этажность: 1 / 5.
1/1
Код объекта: 264916.
Тип объекта: Помещение свободного назначения.
Площадь: 91 м².
Этаж / Этажность: 1 / 24.
1/17
Код объекта: 268270.
Тип объекта: Помещение свободного назначения.
Площадь: 112.5 м².
Этаж / Этажность: 1 / 9.
1/29
Код объекта: 268305.
Тип объекта: Помещение свободного назначения.
Площадь: 70 м².
Этаж / Этажность: 1 / 2.
1/9
Код объекта: 255735.
Тип объекта: Офисное помещение.
Площадь: 106 м².
Этаж / Этажность: 4 / 5.
1/18
Код объекта: 255872.
Тип объекта: Офисное помещение.
Площадь: 60 м².
Этаж / Этажность: 7 / 9.
1/10
Код объекта: 255350.
Тип объекта: Помещение свободного назначения.
Площадь: 111 м².
Этаж / Этажность: 1 / 5.
1/13
Код объекта: 254566.
Тип объекта: Помещение свободного назначения.
Площадь: 1090 м².
Этаж / Этажность: 1 / 22.
1/24
Код объекта: 256693.
Тип объекта: Отдельно стоящее здание.
Площадь: 370 м².
Этаж / Этажность: 1 / 3.

Не хочу искать, перезвоните мне!

Оставьте номер телефона, наш специалист свяжется с вами и поможет с подбором недвижимости!